建筑公司辦公室裝修城市未來創新
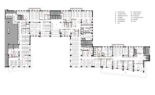
建筑公司辦公室裝修城市未來創新,整潔的室內、掃線和卷和鮮艷的顏色口音一個低調的配色方案表明,未來是很有意識地建造。一列與屏幕媒體接待區內可以展示公司的項目,包括那些計劃在未來,給客戶。這一事實的一個會議室位于接待區附近強調了現代快節奏的公司的形象。全玻璃卷提供了一個全面的城市視圖。體積是接待區分開的玻璃墻深綠松石的顏色,這是一個強調色在公司的標志。隱藏的光源,聚合物場鑄地板、智能玻璃會議室,改變其光學性質取決于隱私需求和變得黯淡或完全透明,無線連接計算機硬件和屏蔽所有這些技術作為未來和現在,之間的聯系之間的一些突破性的和已經經過驗證的方法,發現進入設計公司的辦公室。

建筑公司辦公室裝修城市未來創新
建筑公司辦公室裝修城市未來創新
建筑公司辦公室裝修城市未來創新
建筑公司辦公室裝修城市未來創新
上一篇 :
專業定制的科技公...
下一篇 :
消防公司辦公室設計追求藝術享受

